$699,900 Sale
Listed 92 days ago
14039 104 Avenue
· 0
· 0
· -
· -
Key Facts
Key facts for 14039 104 Avenue
Property Type
Lots/Land
Parking
-
MLS®
E4445732
Size
-
Basement
-
Listed on
-
Lot size
-
Tax
-
Days on Website
-
Year Built
-
Maintenance Fee
-
Description
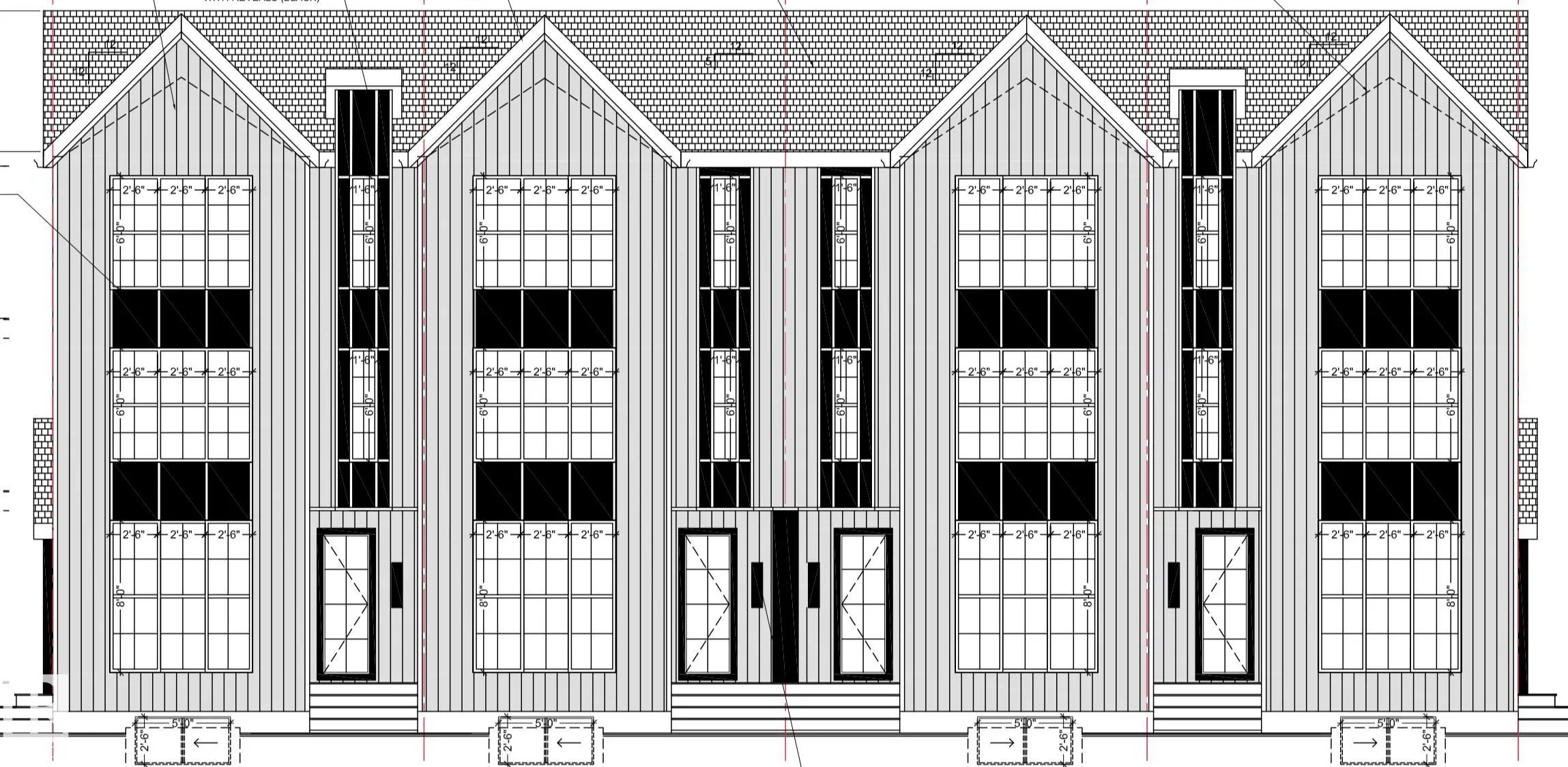
CORNER LOT in GLENORA measuring 53.2 ft x 149.9 Ft. The old home has already been demolished & removed. The site is ready to build! Plans available for 9-Units, consisting of a 4-plex with legal suites & garage suite at the rear. Large Main units designed to be 3 storeys, 4 bedrooms & 3.5 bat...hs @ +1950 SQFT. Spacious 1 Bedroom Basement Suites & a Large Garage suite. This sought after neighbourhood will bring Strong Rents for your rental portfolio. An excellent project for CHMC MLI Financing. This is a fantastic location in the heart of Glenora with Amenities, Transportation, Schools, and a shops all within walk-ing distance.
Similar Properties (No results)
Courtesy of: Adam J Benke, Real Broker